Meridian Offices

Type: Mixed Use (Office / Retail)

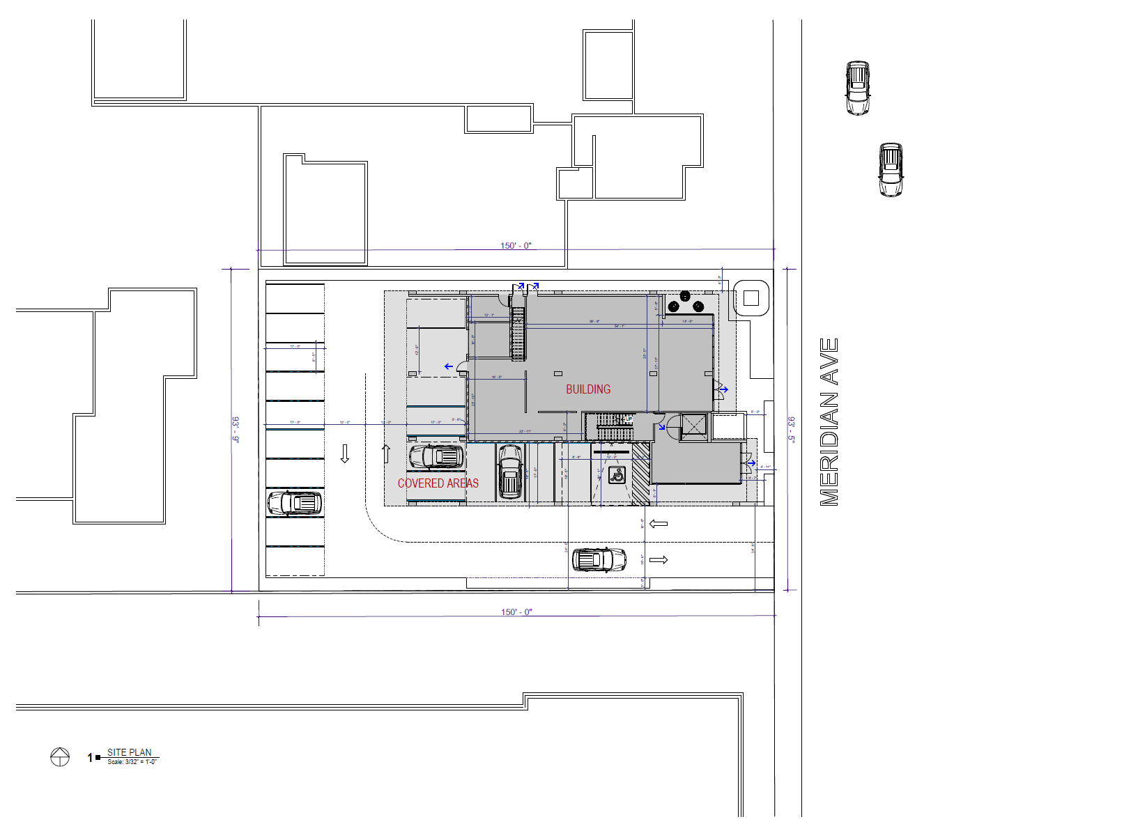
Lot Size: .32 AC (13,900 SF)

Office Space: 12,786 SF

Restaurant Retail: 2,475 SF

Parking: 20 Spaces

Location: San Jose (Southwest Expressway Urban Village)

One of the most important goals of every project is to strengthen neighborhood connectivity and elevate everyday experience at the street. This development reimagines two adjacent lots at 931 and 935 Meridian Avenue, consolidating them into one parcel and replacing the existing buildings with a three-story, Type V mixed-use workplace that activates the corridor with a ground-floor food-service tenant.

The building is organized to support both public and professional uses: the ground floor prioritizes an engaging storefront experience, while Levels 2 and 3 create a flexible office ecosystem-anchored by a dental practice and rentable office suites, and complemented by Aria Build’s construction office, a millwork showroom, and an architectural studio. Surface parking is located at the rear, preserving a more pedestrian-friendly edge along Meridian Avenue.

Architecture reflects the needs of the moment-spaces that foster collaboration, visibility, and long-term adaptability. The design emphasizes clear circulation, ample daylight, and a straightforward massing strategy that supports an active streetscape while keeping service and parking functions discreet. This project transforms underutilized parcels into a focused, work-centered destination that adds energy and utility to the neighborhood throughout the day.

Previous
Previous

Canario Way ADU

Next
Next

1470 Industrial Ave